Nouveau projet Rapi-Deuche

Vous avez trouvé une superbe sortie de grange ? Vous voulez montrer votre restauration ? Ou tout simplement présenter votre titine ? Alors il faut poster ici !
Avatar du membre
Christophe
Messages : 915
Enregistré le : 08 nov. 2015 17:30
Localisation : St Victor (07)

Nouveau projet Rapi-Deuche

Message non lu par Christophe »

Bien le bonsoir chez vous.

La remise en forme de la DYANE arrivant presque à terme. Il faut trouver une nouvelle occupation, car je ne sais pas rester sans rien faire et mon cerveau (ou ce qu'il en reste :o) est en constante ébullition. Une manière aussi d'occuper l'esprit et d'éviter des pensées négatives...

Alors, c'est un vieux projet, et ce malgré le titre de ce fil. Il remonte à environ 14 ans (2006), donc bien avant de posséder une 2 pattes. À l'époque j'étais un fidèle lecteur de la revue 2CV Magazine. Ce qui a bien changé depuis... Un numéro est sorti avec un article entier consacré à une drôle de petite roulotte accrochée derrière une 2CV. Il s'agissait de l'Alternative, une création du Deuchiste Péno, reprenant le style des teardrops américains des années '30 et non sans rappeler la Piccolo d'Elektro-stahlbau.
Passionné par cet article, je le lis maintes et maintes fois. Trouvant son idée géniale, je commence à imaginer la création d'un teardrop à ma sauce.

J' établis alors plusieurs tracés, tous plus farfelus les uns que les autres avec une idée commune : permettre un couchage 2 personnes pour passer des nuits confortables en rêvant qu'un jour je ferai des concentres. Mon père me prend alors pour un doux cinglé et ne comprend absolument pas l'intérêt de cette "boîte à sardines"! C'est l'histoire de tous les fous. Être mal compris.

Mon père étant dessinateur industriel, je m'intéresse au dessin et passe des heures, que dis-je, des journées complètes rivé sur l'ordinateur à créer des solutions sur un logiciel de dessin. Malgré son incompréhension face à mon projet, il m'aide un peu notamment sur les solutions techniques et sur le calcul de résistance des matériaux... Pour le châssis mécano soudé par exemple.

Ce projet tombera finalement à l'eau car aucune 2CV n'arrive dans mes mains et je pense à d'autres choses les années suivantes....
images (6).jpeg
images (6).jpeg (11.73 Kio) Vu 2612 fois
teardrop-classic-trailer-plans_700x.jpg
b93a45e2cb6eed66f29d7830e3bdaa31--teardrop-camper-plans-camp-trailers.jpg
b93a45e2cb6eed66f29d7830e3bdaa31--teardrop-camper-plans-camp-trailers.jpg (12.44 Kio) Vu 2612 fois
Dyane 6 1977 / LNA Club 1982 / 2CV 6 Club 1983 / LNA 11E 1983 / Visa Challenger 1986 / BX 1987 / C15E 475 Kg 1988 / ZX Break Tentation 1997 / Saxo BiC 2 1.1i 2003
Avatar du membre
Christophe
Messages : 915
Enregistré le : 08 nov. 2015 17:30
Localisation : St Victor (07)

Re: Nouveau projet Rapi-Deuche

Message non lu par Christophe »

LMD-C-peno 4.jpg
LMD-C-peno 4.jpg (18.99 Kio) Vu 2612 fois
Dyane 6 1977 / LNA Club 1982 / 2CV 6 Club 1983 / LNA 11E 1983 / Visa Challenger 1986 / BX 1987 / C15E 475 Kg 1988 / ZX Break Tentation 1997 / Saxo BiC 2 1.1i 2003
Avatar du membre
Thierry
Messages : 731
Enregistré le : 04 janv. 2014 21:52
Localisation : Collonges au Mont d'Or (69)

Re: Nouveau projet Rapi-Deuche

Message non lu par Thierry »

Je vais suivre la suite de tes publications sur ce sujet avec grand intérêt.
Avatar du membre
Christophe
Messages : 915
Enregistré le : 08 nov. 2015 17:30
Localisation : St Victor (07)

Re: Nouveau projet Rapi-Deuche

Message non lu par Christophe »

Merci jeune homme !
Si je commence par le début, en même temps j'ai pas trop le choix puisqu'il la fin n'est pas encore faite, cela va durer un peu longtemps.
On serait libéré avant que ça ne m'étonnerait "guerre"...
Dyane 6 1977 / LNA Club 1982 / 2CV 6 Club 1983 / LNA 11E 1983 / Visa Challenger 1986 / BX 1987 / C15E 475 Kg 1988 / ZX Break Tentation 1997 / Saxo BiC 2 1.1i 2003
CHOCO
Messages : 4650
Enregistré le : 11 mars 2012 17:56

Re: Nouveau projet Rapi-Deuche

Message non lu par CHOCO »

Sympa ce projet , la bise Christophe
Avatar du membre
jacques
Messages : 4023
Enregistré le : 22 mars 2011 20:23
Localisation : Lyon - Ouagadougou

Re: Nouveau projet Rapi-Deuche

Message non lu par jacques »

Péno était au Lyon 2CV club quand il habitait dans le coin.
Avatar du membre
Christophe
Messages : 915
Enregistré le : 08 nov. 2015 17:30
Localisation : St Victor (07)

Re: Nouveau projet Rapi-Deuche

Message non lu par Christophe »

Ah bon ! C'était avant qu'il soit constructeur de l'Alternative ?

Aujourd'hui encore, son site sur cette caravane existe pour donner des idées… http://peno.chez-alice.fr/alternative/fiche.htm
Dyane 6 1977 / LNA Club 1982 / 2CV 6 Club 1983 / LNA 11E 1983 / Visa Challenger 1986 / BX 1987 / C15E 475 Kg 1988 / ZX Break Tentation 1997 / Saxo BiC 2 1.1i 2003
Avatar du membre
Didier
Messages : 3481
Enregistré le : 14 févr. 2011 19:48
Localisation : F-69-L'ARBRESLE

Re: Nouveau projet Rapi-Deuche

Message non lu par Didier »

Il est joignable par Facebook
@ (.°\=/°.) c'est mieux!
Avatar du membre
Christophe
Messages : 915
Enregistré le : 08 nov. 2015 17:30
Localisation : St Victor (07)

Re: Nouveau projet Rapi-Deuche

Message non lu par Christophe »

Voici quelques captures des différents tracés créés pendant plusieurs années.

A chaque fois, il y a un impératif à respecter : pouvoir passer de la position allongé à la position assis. C'est évident mais ça serait bête de passer à côté et mine de rien cela définit déjà presque toute la forme avant de cette remorque.

Pour cela, je me mesure, en étant assis, la distance entre mes fesses et ma tête... :lol:

On retrouve cette arc de trajectoire sur les tracés, en rouge discontinu. Rayon 90 cm.
ailette 2.jpg
Ensuite, il faut prévoir une longueur de couchage équivalente à celle d'un lit, donc 1m90.
Comme une caravane classique et comme l'a fait Péno, je prévois un espace rangement sous le lit pour entreposer les bagages.
Sur certains tracés, je prévois une grande ouverture arrière donnant accès à une kitchenette recevant réfrigérateur, évier et réchaud. L'essentiel en somme.
2cv_magazine_alternative_page_2.jpg
Il faut que la ligne de la caravane suive un peu celle de la 2CV, la forme goutte d'eau des teardrops va bien pour cela. Pour me faire une idée, je retrace donc le profil d'une 2CV et associe les 2 comme si elles étaient attelées.
ailette 3.jpg
Dyane 6 1977 / LNA Club 1982 / 2CV 6 Club 1983 / LNA 11E 1983 / Visa Challenger 1986 / BX 1987 / C15E 475 Kg 1988 / ZX Break Tentation 1997 / Saxo BiC 2 1.1i 2003
Avatar du membre
Christophe
Messages : 915
Enregistré le : 08 nov. 2015 17:30
Localisation : St Victor (07)

Re: Nouveau projet Rapi-Deuche

Message non lu par Christophe »

Didier a écrit :Il est joignable par Facebook
Je l'ai en proposition sur face de bouc en effet. ;)
Dyane 6 1977 / LNA Club 1982 / 2CV 6 Club 1983 / LNA 11E 1983 / Visa Challenger 1986 / BX 1987 / C15E 475 Kg 1988 / ZX Break Tentation 1997 / Saxo BiC 2 1.1i 2003
Avatar du membre
Christophe
Messages : 915
Enregistré le : 08 nov. 2015 17:30
Localisation : St Victor (07)

Re: Nouveau projet Rapi-Deuche

Message non lu par Christophe »

Cela représente la première forme imaginée mais très largement inspirée de l'Alternative.

Dans ce tracé, je pars de zéro, tout est à créer, du châssis au toit en passant par la suspension…
J'essaie de trouver des solutions de construction, le châssis est imaginé en profilés acier étirés à froid : tube carrés ou rectangulaires, soudés entre eux formant cadre et timon.
La suspension est au début inexistante, je monte les roues directement au châssis via un axe prisonnier dans 2 moyeux. :lol:
Ensuite j'imagine la création de bras oscillants indépendants en simple tube rectangulaire et équipé d'un amortisseur type 2CV...
ailette 5.jpg
Cette solution n'étant pas retenue, j'envisage de récupérer en casse 2 1/2 trains AR de VISA. Il y a 15 ans de cela, les VISA sont nombreuses en casse ! :pleure:
Cela devient déjà plus facile à imaginer et à mettre en place
Un gros inconvénient reste la présence du ressort et de l'amortisseur en position verticale… :nonon:
ailette 4.jpg
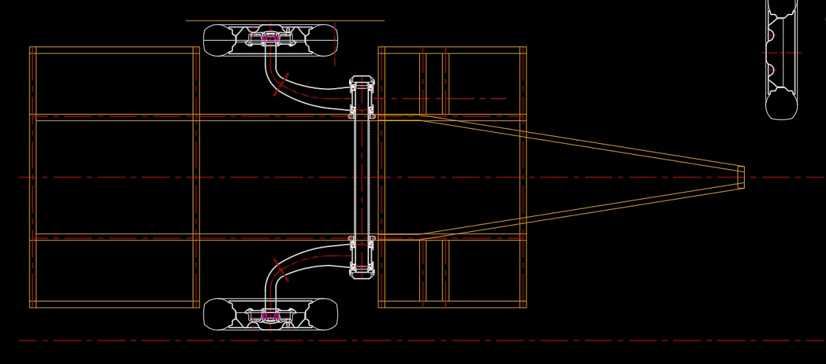
J'abandonne donc cette idée au profit d'un train AR de 2CV fixé au châssis et recrée une sorte de 1/2 pot de suspension avec des silentblocs Paulstra de chaque côté…
ailette 7.jpg
Modifié en dernier par Christophe le 19 avr. 2020 14:09, modifié 1 fois.
Dyane 6 1977 / LNA Club 1982 / 2CV 6 Club 1983 / LNA 11E 1983 / Visa Challenger 1986 / BX 1987 / C15E 475 Kg 1988 / ZX Break Tentation 1997 / Saxo BiC 2 1.1i 2003
Avatar du membre
Christophe
Messages : 915
Enregistré le : 08 nov. 2015 17:30
Localisation : St Victor (07)

Re: Nouveau projet Rapi-Deuche

Message non lu par Christophe »

Dont voici la représentation ici…
ailette 6.jpg
Une vue générale du châssis
ailette 10.jpg
Finalement, non satisfait de la forme de base, je dessine quelque chose de plus en accord avec une caisse de 2CV
ailette 1.jpg
Dyane 6 1977 / LNA Club 1982 / 2CV 6 Club 1983 / LNA 11E 1983 / Visa Challenger 1986 / BX 1987 / C15E 475 Kg 1988 / ZX Break Tentation 1997 / Saxo BiC 2 1.1i 2003
Avatar du membre
Christophe
Messages : 915
Enregistré le : 08 nov. 2015 17:30
Localisation : St Victor (07)

Re: Nouveau projet Rapi-Deuche

Message non lu par Christophe »

ailette 8.jpg
Dans ce modèle, la porte latérale rappelle un peu celles de la 2CV, j'imagine récupérer des ailes AR pour faire les passages de roues.

Une évolution ici où je crée ainsi une grande ouverture arrière de la forme de la porte de malle. Une roue de secours sur la face AV. Même le dispositif de freinage est imaginé en reprenant un maitre-cylindre de Deuche actionné via une came reliée elle-même à la tête d'attelage coulissante dans un fourreau équipé de rondelles ressorts type "Belleville"
ailette 9.jpg
ailette 13.jpg

C'est à peu près à ce moment là que mon père me prend pour un cinglé ! &a& :saoul:

A force de discussions, je finis par comprendre… Cela prend du temps parce que je suis têtu et jeune ! :lol:
La conclusion est que tout cela est irréalisable, bien trop compliqué, mal étudié et ne tiendra jamais la distance.
De plus, mon père insiste et me dit que jamais un truc pareil sera autorisé sur la route ! :bebepleure2:
Dyane 6 1977 / LNA Club 1982 / 2CV 6 Club 1983 / LNA 11E 1983 / Visa Challenger 1986 / BX 1987 / C15E 475 Kg 1988 / ZX Break Tentation 1997 / Saxo BiC 2 1.1i 2003
Avatar du membre
jacques
Messages : 4023
Enregistré le : 22 mars 2011 20:23
Localisation : Lyon - Ouagadougou

Re: Nouveau projet Rapi-Deuche

Message non lu par jacques »

le plus simple, pour une telle réalisation, est de partir d'une remorque type "porte moto", qui n'a finalement qu'un châssis avec suspension et freinage..... et qui est homologué avec plaque.... et de greffer dessus la "carrosserie" que tu souhaite.
Il faut simplement ne pas dépasser le poids total en charge de l'homologation. et que ton véhicule tracteur soit OK au niveau du poids total roulant.
Avatar du membre
Christophe
Messages : 915
Enregistré le : 08 nov. 2015 17:30
Localisation : St Victor (07)

Re: Nouveau projet Rapi-Deuche

Message non lu par Christophe »

Tout à fait. C'est ce qui sera décidé par la suite…
Nous sommes en 2007... Je me rends dans les centres autos, revendeurs de remorques, pour chiper quelques documentations sur les châssis porte moto/quad. Et je prends des mesures sur des châssis exposés attirant l'œil des vendeurs ! :lol:
trax.jpg
Je retiens un modèle et recommence en imaginant une cellule plus petite, qui pourrait rentrer sur le châssis.
Quasi une forme de coquille d'œuf.
ailette 11.jpg
ailette 12.jpg
Oui, je roule en AX à cette période-là... ;)

Puis le projet finit aux oubliettes en 2008, lors de la découverte et de l'achat de ma première Rapido Confort.
Je vais en avoir 4 en tout. ==
Modifié en dernier par Christophe le 19 avr. 2020 18:30, modifié 1 fois.
Dyane 6 1977 / LNA Club 1982 / 2CV 6 Club 1983 / LNA 11E 1983 / Visa Challenger 1986 / BX 1987 / C15E 475 Kg 1988 / ZX Break Tentation 1997 / Saxo BiC 2 1.1i 2003
Avatar du membre
Christophe
Messages : 915
Enregistré le : 08 nov. 2015 17:30
Localisation : St Victor (07)

Re: Nouveau projet Rapi-Deuche

Message non lu par Christophe »

Ma première, une '73
IMAG0144.JPG
IMAG0214.JPG
IMAG0249.JPG
Dyane 6 1977 / LNA Club 1982 / 2CV 6 Club 1983 / LNA 11E 1983 / Visa Challenger 1986 / BX 1987 / C15E 475 Kg 1988 / ZX Break Tentation 1997 / Saxo BiC 2 1.1i 2003
Avatar du membre
Christophe
Messages : 915
Enregistré le : 08 nov. 2015 17:30
Localisation : St Victor (07)

Re: Nouveau projet Rapi-Deuche

Message non lu par Christophe »

Ma 2ème, de 1983 Matic, achetée en 2011
IMAG0622.JPG
J'avais aussi une Digue Tourisme 310 de '80
IMAG0641.JPG
DSC_0018.JPG
Modifié en dernier par Christophe le 19 avr. 2020 17:57, modifié 1 fois.
Dyane 6 1977 / LNA Club 1982 / 2CV 6 Club 1983 / LNA 11E 1983 / Visa Challenger 1986 / BX 1987 / C15E 475 Kg 1988 / ZX Break Tentation 1997 / Saxo BiC 2 1.1i 2003
Avatar du membre
Christophe
Messages : 915
Enregistré le : 08 nov. 2015 17:30
Localisation : St Victor (07)

Re: Nouveau projet Rapi-Deuche

Message non lu par Christophe »

La 3ème, de 1982. Matic aussi en 2015
DSCF1494.JPG
DSCF1505.JPG
DSCF1608.JPG
Dyane 6 1977 / LNA Club 1982 / 2CV 6 Club 1983 / LNA 11E 1983 / Visa Challenger 1986 / BX 1987 / C15E 475 Kg 1988 / ZX Break Tentation 1997 / Saxo BiC 2 1.1i 2003
Avatar du membre
Christophe
Messages : 915
Enregistré le : 08 nov. 2015 17:30
Localisation : St Victor (07)

Re: Nouveau projet Rapi-Deuche

Message non lu par Christophe »

Et la dernière achetée en 2018
Une '82 aussi
DSCF2842.JPG
DSC_0351.JPG
DSC_0350.JPG
Dyane 6 1977 / LNA Club 1982 / 2CV 6 Club 1983 / LNA 11E 1983 / Visa Challenger 1986 / BX 1987 / C15E 475 Kg 1988 / ZX Break Tentation 1997 / Saxo BiC 2 1.1i 2003
CHOCO
Messages : 4650
Enregistré le : 11 mars 2012 17:56

Re: Nouveau projet Rapi-Deuche

Message non lu par CHOCO »

Super toutes ces Rapido !

La photo avec la Megane grise va faire réagir un certain monsieur à moustache avec un chapeau et une cravate citrorenault !!!
Répondre